Front Garden Bike & Bin Storage for Bay Windows with Green Roof
Are bikes cluttering your hallway and bins hiding behind bushes? A small front garden deserves a sophisticated solution.
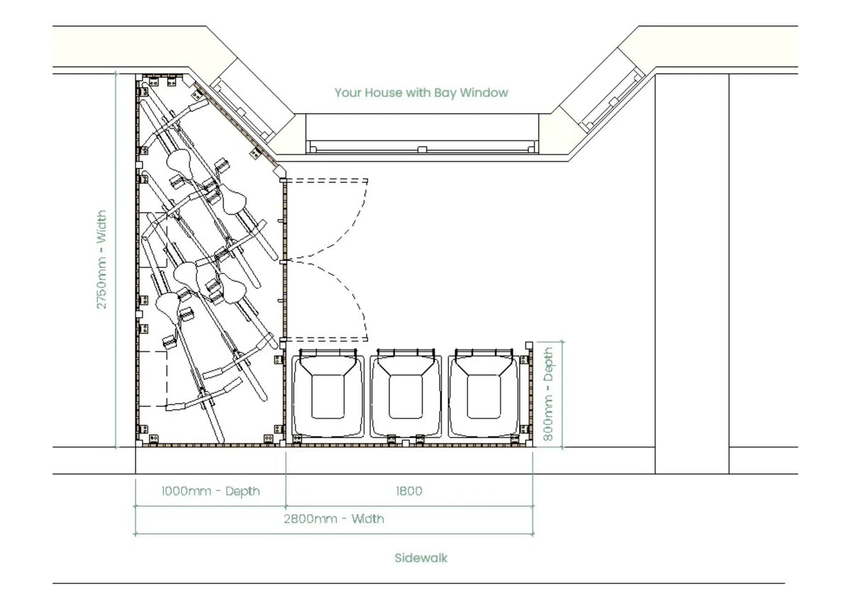
The Verde Forma+ is designed to fit precisely around your bay window and features an extension to shelter your bins. This bespoke unit maximises your available space, keeping your bikes and outdoor storage organised, secure, and protected from the elements while adding kerb appeal to your property.
This custom-built bike and bin storage features:
🚲 Bike Storage – A dedicated, secure space to protect your bikes.
 🗑  Bin Shelter – An integrated extension to store your bins out of sight.
📏 Precision Fit – Custom-built to follow the exact shape of your bay window and property wall.
🌿 Green Roof – A low-maintenance planted roof that adds greenery to your home.
🔐 Secure & Durable – Built to last with a state of the art Phantom security system.
⚡ Space Optimisation – A compact all-in-one bikes and bins storage solution, tailored to match your property boundaries.
Secure your bikes, hide your bins and bring nature to your front yard with a planted roof.
📩 Book a complimentary 15-minute consultation.
***The Verde Forma+ Bike & Bin Store is a physical product, handmade in our UK workshop and delivered fully built to your property - designed to last a lifetime.
Check out how one of our clients integrated a Verde Forma+ into their front garden.

 
   
 
                          
                       
 
                          
                       
 
                          
                       
 
                          
                       
 
                          
                       
 
                          
                       
 
                          
                       
 
                          
                       
 
                          
                       
 
                          
                      
 
          
           
          
           
          
          